preloader image
  • Nos agences

  • Contact

  • Catalogue

  • Actualités

  • De 79m2 à 82m2
    De 79m2 à 82m2
  • 3 chambre
    3 chambre
  • Baies coulissantes
  • Charpente fermette
  • RE2020

Classe énergie

  • A
  • B
  • C
  • D
  • E
  • F
  • G

Ges

  • A
  • B
  • C
  • D
  • E
  • F
  • G

Descriptif du modèle

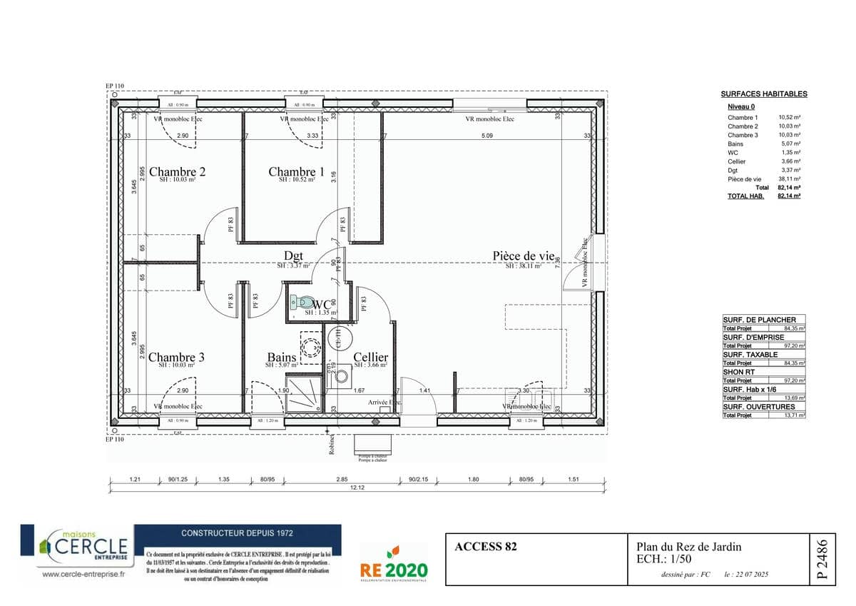
Access 82 : l’équilibre parfait entre espace et budget maîtrisé

 

La Access 82 est un modèle parfaitement équilibré, pensé pour offrir davantage d’espace tout en conservant un budget accessible. Avec ses 82 m² habitables, elle constitue une solution idéale pour une famille à la recherche de confort et de fonctionnalité.

Son plan propose 3 chambres confortables d’environ 10 m² chacune, une salle de bains, un WC indépendant, un dégagement optimisé ainsi qu’un cellier pratique. Son véritable atout réside dans sa pièce de vie lumineuse de plus de 38 m², intégrant séjour et cuisine ouverte pour créer un espace central convivial et moderne.

De plain-pied, la Access 82 facilite la circulation et s’adapte à de nombreux types de terrains. Son agencement intelligent permet une séparation naturelle entre l’espace jour et l’espace nuit, garantissant intimité et confort au quotidien.

Conçue conformément à la RE2020, elle assure une excellente performance énergétique, un confort thermique optimal en toute saison et des consommations maîtrisées sur le long terme.

Access 82, c’est le compromis idéal entre surface, qualité de vie et prix maîtrisé.

Options les plus vendues sur ce modèle

  • Menuiseries Aluminium
  • Domotique

Prix de votre modèle

Veuillez indiquer votre code postal pour connaitre le prix de ce modèle

Obtenir des informations pour faire construire

Formulaire contact principa

Plans du modèle

  • De 79m2 à 82m2
    De 79m2 à 82m2
  • 3 chambre
    3 chambre
  • Baies coulissantes
  • Charpente fermette
  • RE2020

Vue 3D du modèle

Visite Virtuelle de cette maison

Modèle similaire

Maison traditionnelle

  • Garage intégré
  • RE2020

Maison traditionnelle

  • Basse Consommation
  • Luminosité

Maison traditionnelle

  • RE2020
  • Garage intégré
  • Plan en T
  • 2éme salle de bains

Maison traditionnelle

  • Plan en L
  • Garage intégré
  • Baies coulissantes

Maison traditionnelle

  • 2 pans ou 4 pans
  • Garage intégré
  • Porche

Maison traditionnelle

  • 2 pans ou 4 pans
  • Garage intégré